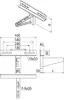
Кронштейн висувний WWVS500 (712923)

Виробник: BAKS
Артикул: WWVS500
Ціна за дзвінком

Кріплення кабельних лотків, кабельних драбин, труб та інших важких елементів.

Матеріал

F - гарячеоцинкована сталь PN-EN ISO 1461:2023-02
На запит:
E - нержавіюча сталь
L - фарбування у стандартній палітрі RAL

Додаткова інформація

– при кріпленні стріли до сталевої конструкції використовуємо затискні кронштейни UDCN10 - UDCN40
– вибір кронштейнів залежить від товщини прогонів

Характеристики товару

Назва атрибуту Значення атрибуту
Системи кабельних трас
Типи елементів кронштейн
Товщина листа 0.0 мм
Властивості матеріалу F - гарячеоцинкована сталь
Вага 1шт [кг] 6.93
Кількість [шт] 10
Розмір h [мм] 250
Розмір L 530
F макс. [кН] 8